Nezávazně poptat
Goldbeck ArchStudio

ADMINISTRATIVNÍ BUDOVA TOVAČOV

INVESTOR SOUKROMÝ
STUDIE 2022
DOKUMENTACE 2023
REALIZACE 2024
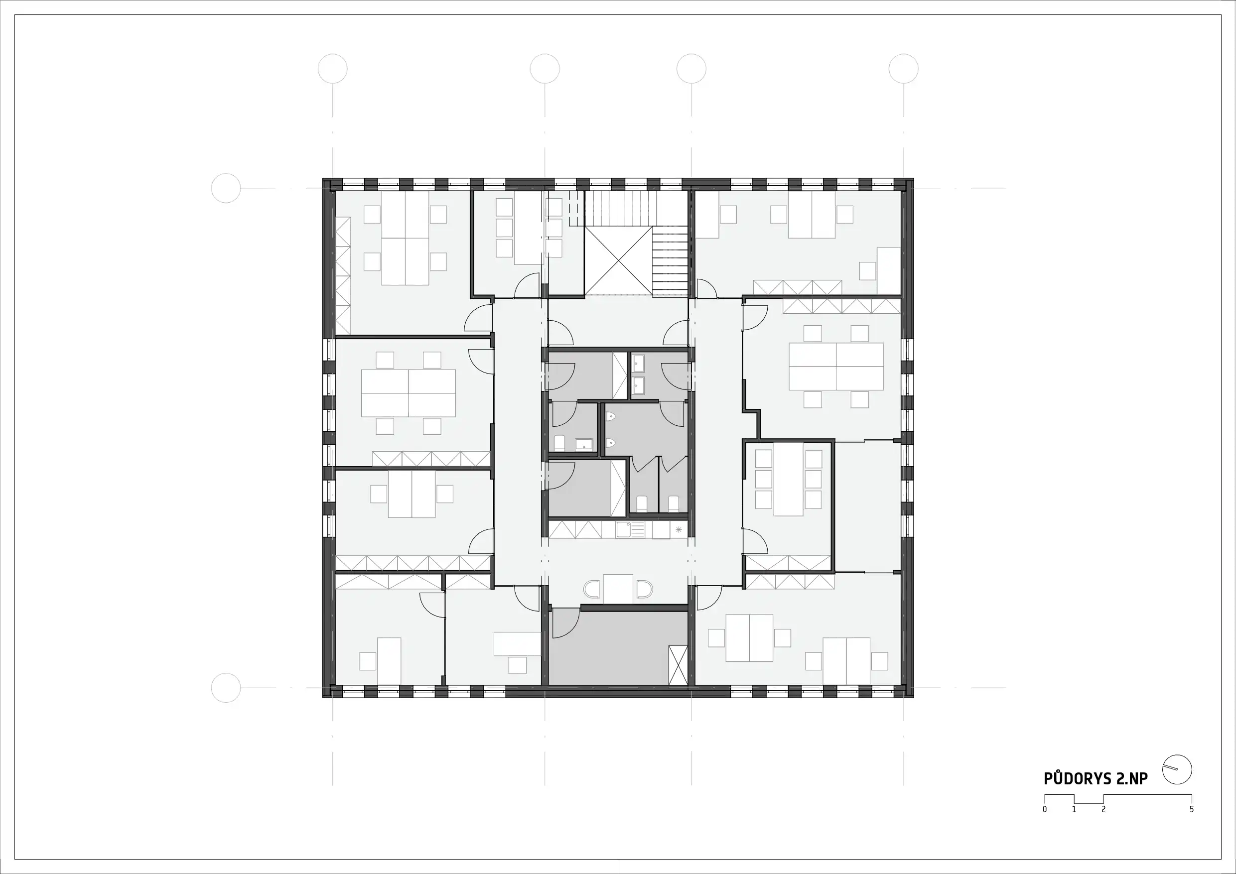
DISPOZICE 13 KANCELÁŘÍ, 3 ZASEDACÍ MÍSTNOSTI
ZASTAVĚNÁ PLOCHA 354,61 m2
UŽITNÁ PLOCHA 589,82 m2

 Administrativní budova coby 'pracovní místo' pro 40 osob byla navržená jako jeden kompaktní kvádr v zastavěném území stávajícího výrobního areálu v obci Tovačov. Svou polohou nahradila již zdemolovaný objekt jídelny, který nevyhovoval dnešním standardům užívání.Objekt je dvoupodlažní s téměř čtvercovým půdorysem. V návrhu bylo cílem uplatnit vlastní stěnový prefabrikovaný systém, který firma vyvinula. Těžce působící betonový povrch hlavní nosné konstrukce budovy v kombinaci s četným zasklením vytváří na fasádě harmonický kontrast.Kromě nosných obvodových stěn byly uvnitř dispozice navrženy dvě nosné prefabrikované stěny, které ohraničují technické zázemí. Ty spolu s vodorovnými prvky nesou celou budovu. Zbytek budovy je vystavěn z lehkých sádrokartonových příček, které umožňují libovolně měnit dispozici.

ADMINISTRATIVNÍ BUDOVA TOVAČOV
ADMINISTRATIVNÍ BUDOVA TOVAČOVADMINISTRATIVNÍ BUDOVA TOVAČOVADMINISTRATIVNÍ BUDOVA TOVAČOV
<
>